0 / 5 0 review 
06 123 456 78

Mgr.Nolensplein 20, EYGELSHOVEN

€509.000,-
k.k.
6471 AG EYGELSHOVEN
Open huis
28-03 11:00 - 28-03 15:00
Vraag bezichtiging aan Download brochure
  • Prijs€509.000,- k.k.
  • Woonoppervlakte167 m²
  • Type2-onder-1-kap
  • Slaapkamers5

Omschrijving

OPEN HUIS: 28 MAART 2026 tussen 11.00-15.00 uur

Te koop: Woning met dubbele garage en ruime tuin – Mgr. Nolensplein 20, Eygelshoven

Uniek object op een royaal perceel gelegen aan het Mgr. Nolensplein 20 combineert ruimtelijk wonen met twee aangebouwde garages en diepe tuin — ideaal voor de hobbyist die woon- en werkruimte wil combineren.

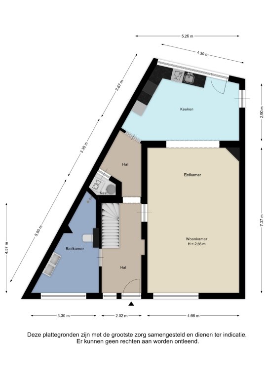
De maten van alle ruimtes vindt u terug in de plattegronden!

Leuk om te weten:
- Bouwjaar: 1931;
- Perceeloppervlakte: 780 m² (conform kadaster);
- Woonoppervlakte: 167 m²;
- Overige inpandige ruimte: 164 m²;
- Woning met 5 slaapkamers;
- Beide garages met dubbele poort, energievoorziening (elektra en water) en bereikbaar vanuit de woning en het terrein;
- Aanvaarding in overleg.

INDELING WONING

Souterrain:
Het souterrain is bereikbaar via een verlaging met een trapje. Het souterrain is opgesplitst in 2 ruimtes d.m.v. een deur. Geschikt als opslag- of werkruimte.

Begane grond:
Bij binnenkomst in de hal bevinden zich de badkamer, trap naar de eerste verdieping, deur naar de tweede hal en toegang tot de woonkamer. In de tweede hal bevindt zich een kast met witgoedaansluitingen en een doorgang naar de keuken. De woonkamer is ruim en biedt voldoende plek voor een zit- en eetgedeelte.

De keuken is te bereiken via een open doorgang met een kozijn die de ingang versmalt, geeft toegang tot de tuin en de loods. De keuken beschikt over een oven, inductiekookplaat, afzuigkap, spoelbak met kraan, vaatwasser, boven- en onderkasten en twee grote ramen die zorgen voor veel lichtinval.

Eerste verdieping:
Op de overloop bevindt zich de toegang tot drie slaapkamers, de badkamer en de trap naar de zolder. De slaapkamer aan de achterzijde geeft via dubbele glazen deuren toegang tot een ruim terras.

Zolder:
De zolderverdieping bestaat uit twee delen, gescheiden door een deur, deze beschikt over twee dakramen en is geschikt voor opslag of als extra kamer.

Tuin:
Riante buitenruimte met voldoende plaats voor uitbreiding, buitenopslag of recreatief gebruik.

2 garages:
De garages zijn direct aan de woning gebouwd en beschikken over:
Twee toegangsdeuren met poorten richting het buitenterrein;
Cv-ketel
Aansluitingen voor elektra en water;
Ruimte geschikt voor opslag, werkplaats of ambachtelijke activiteiten;

De waarborgsom/bankgarantie is 10% van de koopsom. De koper dient deze, indien de verkoper en koper dit overeenkomen, binnen 2 weken nadat het financieringsvoorbehoud is verlopen bij de desbetreffende notaris te deponeren.
Ter bescherming van de belangen van zowel koper als ook verkoper wordt uitdrukkelijk gesteld dat een koopovereenkomst met betrekking tot deze onroerende zaak eerst dan tot stand komt nadat koper en verkoper de koopovereenkomst hebben getekend (schriftelijkheidsvereiste).
Indien c.v. ketel en/of warmwatervoorziening een huurtoestel is, dient koper de huurovereenkomst over te nemen.

Alle door ons kantoor verstrekte informatie omtrent onroerende zaken, moet beschouwd worden als een uitnodiging om in onderhandeling te treden, en is geheel vrijblijvend! Alle vermelde maten en afmetingen zijn slechts bij benadering. Aan deze beperkte info kunnen geen rechten worden ontleend. Indien in enige documentatie of op enige website informatie staat die niet overeen komt met de werkelijkheid, dan geldt de feitelijke situatie waarin de woning zich bevindt, zoals koper deze tijdens de bezichtiging heeft kunnen waarnemen, en wordt de woning in deze feitelijke situatie/staat verkocht. Een (eventueel) bijgevoegde plattegrond dient uitsluitend als globale indicatie/visualisatie. Hieraan kunnen uitdrukkelijk geen rechten worden ontleend.

De makelaar Ray van der Venne nodigt u uit voor een bezichtiging.

Lees meer
Contact
Demo Makelaardij o.g.

Kerkstraat 1
1111AA Sittard

  0854012944
  monitoring@mediazo.nl

Specificaties
Afmetingen
  • Woonopp. 167m²
  • Perceelopp. 780m²
  • Inhoud 1373m³
Algemeen
  • Beschikbaarheid In overleg
  • Huisdieren gewenst Nee
Bouw
  • Soort Woningen
  • Type 2-onder-1-kap
  • Bouwjaar 1931
Energie
  • Energielabel D
  • CV-ketel hr
  • CV-ketel eigendom Nee
  • CV-ketel brandstof Gas
  • CV-ketel warmwater Ja
Indeling
  • Slaapkamers 5
  • Aparte douche Nee
  • Garage Ja
  • Kelder Ja, 1m²
  • Tuin Nee
  • Balkon Nee
  • Dakterras Nee
Kadastrale gegevens
  • Gemeente Kerkrade
  • Sectie 1 N
  • Sectie 1 perceelnummer 3031
Overig
  • Onderhoud binnen Goed
  • Onderhoud buiten Goed
Voorziening
  • Parkeerplaats Ja
  • Lift Nee
  • Airco Nee
  • Openhaard Nee
  • Zwembad Nee
Lees meer
Klik hier om de kaart te bekijken

Afbeeldingen

Plattegrond

Documenten

Vraag bezichtiging aan

Veld niet correct
Veld niet correct
Veld niet correct
Veld niet correct

Brochure aanvragen

Veld niet correct
Veld niet correct
Veld niet correct
Veld niet correct
Veld niet correct
Veld niet correct
Veld niet correct