0 / 5 0 review 
06 123 456 78

Stiftstraat 9, LANDGRAAF

 
Verkocht
€398.000,-
k.k.
6374 AW LANDGRAAF
Vraag bezichtiging aan Download brochure
  • Prijs€398.000,- k.k.
  • Woonoppervlakte110 m²
  • Type2-onder-1-kap
  • Slaapkamers3

Omschrijving

Rustig gelegen aan de Stiftstraat in Landgraaf bevindt zich deze goed onderhouden twee-onder-een-kap-woning met garage, oprit en verzorgde achtertuin. De woning combineert een prettige woonligging met verrassend veel ruimte, een moderne afwerking en duurzame voorzieningen zoals zonnepanelen en airconditioning. Een ideale gezinswoning waar comfort en functionaliteit hand in hand gaan. Een complete, instapklare woning op een rustige locatie, met verrassend veel ruimte en comfort!

Leuk om te weten:
- Bouwjaar 1968 (conform BAG);
- Woonoppervlakte ca. 110 m² (meetrapport aanwezig);
- Keuken is in 2020 nieuw geplaatst en is voorzien van siemens studioline apparatuur;
- Pand is geheel voorzien van elektrische (Somfy) rolluiken;
- Energielabel B;
- Plat dak garage vernieuwd in 2012, dak aanbouw vernieuwd in 2016;
- Spouwmuurisolatie aanwezig;
- Geheel voorzien van kunststof kozijnen (garage voorzien van hardhouten kozijnen);
- HR++ glas in de pui van de aanbouw, overige ruimtes met dubbel glas;
- Gehele benedenverdieping voorzien van vloerverwarming;
- 2 airco-units aanwezig;
- 12 zonnepanelen (geplaatst in 2022).

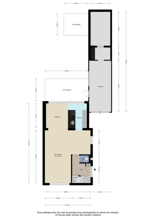
De maten van alle ruimtes vindt u terug in de plattegronden.

INDELING:

Begane grond:
U betreedt de woning via de hal met toegang tot de meterkast en het volledig betegelde toilet met hangcloset en fonteintje. Vanuit de hal leidt de vaste trap, met praktische trapkast, naar de eerste verdieping. In de trapkast zijn de wasmachine en wasdroger netjes opgesteld.
De ruime doorzonwoonkamer staat in open verbinding met de moderne keuken met kookeiland. De keuken is compleet uitgerust met onder andere een inductiekookplaat, BORA-afzuigsysteem, Siemens koffieapparaat, vaatwasser, spoelbak, koelkast en combi-oven.
Aan de achterzijde zorgt een grote glaspartij over de volledige breedte van de woning, met openslaande deuren, voor een prachtige lichtinval en directe verbinding met de tuin. De gehele begane grond is afgewerkt met een doorlopende antracietkleurige tegelvloer, wat zorgt voor een strakke en moderne uitstraling.

Eerste verdieping:
Via de overloop zijn drie slaapkamers bereikbaar, waarvan één is voorzien van een praktische bergkast. De slaapkamers beschikken over een mooie, lichte laminaatvloer.
De geheel betegelde badkamer is uitgerust met een douche en wastafel. Op de overloop bevindt zich tevens de vlizotrap die toegang geeft tot de zolderverdieping.

Zolderverdieping
De zolder bestaat uit een ruime bergzolder, ideaal voor extra opslag.

Achtertuin
De verzorgde achtertuin biedt volop privacy en is ingericht met een beklinkerd terras onder een overkapping. Achterin de tuin is een sfeervol prieel met kunstgras gerealiseerd, een fijne plek om in alle rust te ontspannen.

Garage
De ruime garage is voorzien van een sectionaalpoort. Achter de garage bevinden zich twee bergingen: een kleinere berging met bijkeuken en een grotere berging voor extra opslag of hobbyruimte.

De waarborgsom/bankgarantie is 10% van de koopsom. De koper dient deze, indien de verkoper en koper dit overeenkomen, binnen 2 weken nadat het financieringsvoorbehoud is verlopen bij de desbetreffende notaris te deponeren.
Ter bescherming van de belangen van zowel koper als ook verkoper wordt uitdrukkelijk gesteld dat een koopovereenkomst met betrekking tot deze onroerende zaak eerst dan tot stand komt nadat koper en verkoper de koopovereenkomst hebben getekend (schriftelijkheidsvereiste).
Indien c.v.ketel en/of warmwatervoorziening een huurtoestel is, dient koper de huurovereenkomst over te nemen.

Alle door ons kantoor verstrekte informatie omtrent onroerende zaken, moet beschouwd worden als een uitnodiging om in onderhandeling te treden, en is geheel vrijblijvend! Alle vermelde maten en afmetingen zijn slechts bij benadering. Aan deze beperkte info kunnen geen rechten worden ontleend. Indien in enige documentatie of op enige website informatie staat die niet overeen komt met de werkelijkheid, dan geldt de feitelijke situatie waarin de woning zich bevindt, zoals koper deze tijdens de bezichtiging heeft kunnen waarnemen, en wordt de woning in deze feitelijke situatie/staat verkocht. Een (eventueel) bijgevoegde plattegrond dient uitsluitend als globale indicatie/visualisatie. Hieraan kunnen uitdrukkelijk geen rechten worden ontleend.

De makelaar Roy Ubachs nodigt u uit voor een bezichtiging.

Lees meer
Contact
Demo Makelaardij o.g.

Kerkstraat 1
1111AA Sittard

  0854012944
  monitoring@mediazo.nl

Specificaties
Afmetingen
  • Woonopp. 110m²
  • Perceelopp. 269m²
  • Inhoud 575m³
Algemeen
  • Beschikbaarheid In overleg
  • Huisdieren gewenst Nee
Bouw
  • Soort Woningen
  • Type 2-onder-1-kap
  • Bouwjaar 1968
Energie
  • Energielabel B
  • CV-ketel Combi
  • CV-ketel eigendom Ja
  • CV-ketel brandstof Gas
  • CV-ketel warmwater Ja
Indeling
  • Slaapkamers 3
  • Aparte douche Nee
  • Garage Ja
  • Kelder Nee
  • Tuin Ja
  • Tuin ligging Zuidoost
  • Balkon Nee
  • Dakterras Nee
Kadastrale gegevens
  • Gemeente Ubach over worms
  • Sectie 1 A
  • Sectie 1 perceelnummer 3064
Overig
  • Onderhoud binnen Goed
  • Onderhoud buiten Goed
Voorziening
  • Parkeerplaats Nee
  • Lift Nee
  • Airco Nee
  • Openhaard Nee
  • Zwembad Nee
  • Zonnepanelen Ja
Lees meer
Klik hier om de kaart te bekijken

Afbeeldingen

Plattegrond

Documenten

Vraag bezichtiging aan

Veld niet correct
Veld niet correct
Veld niet correct
Veld niet correct

Brochure aanvragen

Veld niet correct
Veld niet correct
Veld niet correct
Veld niet correct
Veld niet correct
Veld niet correct
Veld niet correct