0 / 5 0 review 
06 123 456 78

Taco Haringastraat 18, Schildwolde

 
Verkocht
€450.000,-
k.k.
9626 TM Schildwolde
Vraag bezichtiging aan Download brochure
  • Prijs€450.000,- k.k.
  • Woonoppervlakte143 m²
  • TypeEengezinswoning
  • Slaapkamers4

Omschrijving

RUIME HALF VRIJSTAANDE WONING MET LAGE WOONLASTEN EN INSTAPKLAAR

In het gezellige Schildwolde staat deze ruime half vrijstaande woning uit 2005 met energielabel A, 12 zonnepanelen, zonneboiler (warm water). De woning is instapklaar, keurig onderhouden, vrijwel gasloos en biedt een uitstekende combinatie van comfort, ruimte en duurzaamheid.

De woning ligt aan een groene en rustige straat met eigen oprit en een zonnige, omheinde tuin op het zuidwesten. De moderne keuken, de unieke geïsoleerde serre met glazen dak, en de sauna met buitendouche maken dit huis tot een heerlijk thuis waar binnen- en buitenleven samenkomen.

INDELING

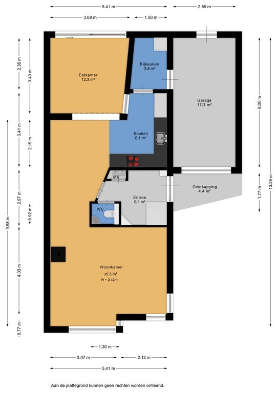
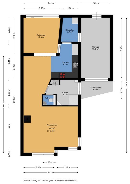
Begane grond
Entree met meterkast en toilet. Ruime, lichte woonkamer met massief eiken vloer en een Jacobus-houtkachel voor extra sfeer. De halfopen keuken is voorzien van een grote inductiekookplaat, vaatwasser, koelkast, vriezer en combi-oven. Aansluitend vind je de volledig geïsoleerde serre (2019) met schuifpui, glazen dak en zonwering, een heerlijke plek om het hele jaar door te genieten van licht en uitzicht op de tuin. Vanuit de bijkeuken (met wasmachineaansluiting) is de volledig geïsoleerde garage (2024) bereikbaar, voorzien van een geïsoleerde deur (2022) en krachtstroom.

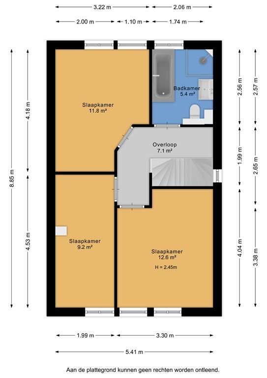
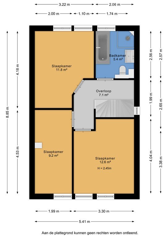
Eerste verdieping
Overloop, drie slaapkamers en een moderne badkamer met (bubbel)ligbad, aparte douche en tweede toilet.

Zolder
Via vaste trap bereikbaar. Deze verdieping is momenteel ingericht als één royale slaapkamer, maar biedt voldoende ruimte om twee kamers te realiseren.
De garage is eenvoudig om te bouwen tot een slaapkamer met badkamer, wat het huis levensloopbestendig maakt

BUITEN
De grote zonnige tuin ligt op het zuidwesten en is fraai aangelegd met een overkapping, houtopslag, fietsenstalling, speeltoestel en een sauna met buitendouche (2018). Hier geniet je in alle rust van privacy en ontspanning. Met de natuur; het dorpsrandpark, de Fraeylemaborg en het Roegwold om de hoek!

BIJZONDERHEDEN
- Energielabel A – bijna gasloos (zeer lage lasten)
- 12 zonnepanelen (2021 – 4440 Wp)
- Zonneboiler – boilervat 200 l. (2021)
- CV-ketel Intergas HRE 36 (2021)
- Waterontharder (2021)
- Nieuwe radiatoren begane grond
- Volledig geïsoleerde garage (2024)
- Geïsoleerde Serre (2019)
- Jacobus-houtkachel
- Massief eiken vloer
- Grote zuidwest-tuin met sauna, buitendouche en overkapping
- Krachtstroom aanwezig
- Laag energieverbruik
- Eigen oprit, nette groene straat

KORTOM: een ruime, moderne en energiezuinige woning met veel comfort, sfeer en mogelijkheden! Van gezinswoning tot levensloopbestendig wonen!

Lees meer
Contact
Demo Makelaardij o.g.

Kerkstraat 1
1111AA Sittard

  0854012944
  monitoring@mediazo.nl

Specificaties
Afmetingen
  • Woonopp. 143m²
  • Perceelopp. 416m²
  • Inhoud 556m³
Algemeen
  • Beschikbaarheid In overleg
  • Huisdieren gewenst Nee
Bouw
  • Soort Woningen
  • Type Eengezinswoning
  • Bouwjaar 2005
Energie
  • Energielabel A
  • CV-ketel eigendom Ja
  • CV-ketel brandstof Gas
  • CV-ketel bouwjaar 2021
  • CV-ketel warmwater Nee
Indeling
  • Slaapkamers 4
  • Aparte douche Nee
  • Garage Ja
  • Kelder Nee
  • Tuin Nee
  • Balkon Nee
  • Dakterras Nee
Kadastrale gegevens
  • Gemeente Midden-groningen
  • Sectie 1 D
  • Sectie 1 perceelnummer 2105
Overig
  • Onderhoud binnen Uitstekend
  • Onderhoud buiten Uitstekend
Voorziening
  • Parkeerplaats Nee
  • Lift Nee
  • Airco Nee
  • Openhaard Nee
  • Zwembad Nee
Lees meer
Klik hier om de kaart te bekijken

Vraag bezichtiging aan

Veld niet correct
Veld niet correct
Veld niet correct
Veld niet correct

Brochure aanvragen

Veld niet correct
Veld niet correct
Veld niet correct
Veld niet correct
Veld niet correct
Veld niet correct
Veld niet correct