0 / 5 0 review 
06 123 456 78

Pricksteenweg 21, KERKRADE

 
Onder bod
€279.500,-
k.k.
6462 BJ KERKRADE
Vraag bezichtiging aan Download brochure
  • Prijs€279.500,- k.k.
  • Woonoppervlakte260 m²
  • TypeHalf-vrijstaand
  • Slaapkamers8

Omschrijving

Aan de Pricksteenweg in Kerkrade staat deze grote karaktervolle halfvrijstaande eengezinswoning met een royale woonoppervlakte van maar liefst 260 m². Gebouwd in 1911 waarbij de ruimte en indeling volop mogelijkheden bieden voor modern woongenot. Met drie woonlagen, meerdere badkamers en een fijne tuin is dit een ideale woning voor een groot gezin of dubbele bewoning. Bovendien profiteert u hier van een gunstige ligging: in een rustige buurt, maar toch dichtbij alle voorzieningen en met goede verbindingen naar het centrum en de uitvalswegen.

Leuk om te weten:
- Bouwjaar 1911 (conform BAG), eigen perceel: 227 m² (conform kadaster);
- Woonoppervlakte ca. 260m², overige inpandige ruimte ca. 39m², (meetrapport aanwezig);
- Inhoud: ca. 988m³;
- Energielabel E;
- Drie woonlagen met veel leefruimte;
- Vier slaapkamers op de eerste verdieping;
- Extra woonruimte met keuken en badkamer op de tweede verdieping;
- Mogelijkheid tot 3-dubbele bewoning;
- Gelegen in Kerkrade, nabij alle voorzieningen.

INDELING

Souterrain:
In het souterrain bevindt zich een provisiekelder: ideaal voor opslag van voorraden, gereedschap of het inrichten van een handige hobbyruimte.

Woonlaag 1:
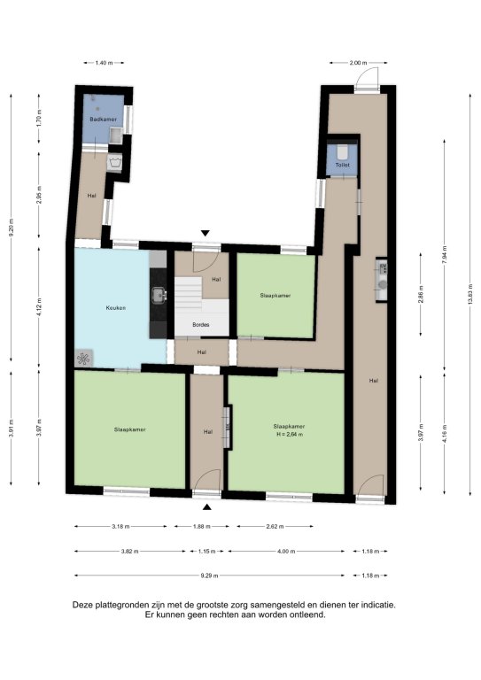
Deze verdieping biedt een praktische indeling met drie slaapkamers, een aparte toiletruimte, keuken, badkamer én de cv-installatie. De aanwezigheid van een complete woon- en slaaplaag maakt dit deel van de woning bijzonder comfortabel en functioneel.

Woonlaag 2:
Op de tweede woonlaag vind je maar liefst vier slaapkamers, een woonkamer en een badkamer. De royale indeling maakt deze verdieping uitermate geschikt voor grotere gezinnen of wie graag een combinatie wil van wonen en werken onder één dak.

Woonlaag 3:
De derde woonlaag verrast met extra leefruimte. Hier zijn een woonkamer, drie slaapkamers, een keuken en een badkamer aanwezig. Deze verdieping leent zich perfect als zelfstandig woongedeelte, ideaal voor inwonende kinderen, ouders of gasten die hun eigen privacy wensen.

Tuin:
Achter de woning ligt een tuin die de mogelijkheid biedt om een fijn buitenplekje te creëren. Of je nu houdt van groen, een speelplek voor kinderen wilt maken of een terras inricht: hier kun je jouw eigen buitenoase vormgeven.

De waarborgsom/bankgarantie is 10% van de koopsom. De koper dient deze, indien de verkoper en koper dit overeenkomen, binnen 2 weken nadat het financieringsvoorbehoud is verlopen bij de desbetreffende notaris te deponeren.
Ter bescherming van de belangen van zowel koper als ook verkoper wordt uitdrukkelijk gesteld dat een koopovereenkomst met betrekking tot deze onroerende zaak eerst dan tot stand komt nadat koper en verkoper de koopovereenkomst hebben getekend (schriftelijkheidsvereiste).
Indien c.v. ketel en/of warmwatervoorziening een huurtoestel is, dient koper de huurovereenkomst over te nemen.

Alle door ons kantoor verstrekte informatie omtrent onroerende zaken, moet beschouwd worden als een uitnodiging om in onderhandeling te treden, en is geheel vrijblijvend! Alle vermelde maten en afmetingen zijn slechts bij benadering. Aan deze beperkte info kunnen geen rechten worden ontleend. Indien in enige documentatie of op enige website informatie staat die niet overeen komt met de werkelijkheid, dan geldt de feitelijke situatie waarin de woning zich bevindt, zoals koper deze tijdens de bezichtiging heeft kunnen waarnemen, en wordt de woning in deze feitelijke situatie/staat verkocht. Een (eventueel) bijgevoegde plattegrond dient uitsluitend als globale indicatie/visualisatie. Hieraan kunnen uitdrukkelijk geen rechten worden ontleend.

De makelaar Ray van der Venne nodigt u uit voor een bezichtiging.

Lees meer
Contact
Demo Makelaardij o.g.

Kerkstraat 1
1111AA Sittard

  0854012944
  monitoring@mediazo.nl

Specificaties
Afmetingen
  • Woonopp. 260m²
  • Perceelopp. 227m²
  • Inhoud 988m³
Algemeen
  • Beschikbaarheid In overleg
  • Huisdieren gewenst Nee
Bouw
  • Soort Woningen
  • Type Half-vrijstaand
  • Bouwjaar 1911
Energie
  • Energielabel E
  • CV-ketel eigendom Nee
  • CV-ketel warmwater Nee
Indeling
  • Slaapkamers 8
  • Aparte douche Nee
  • Garage Nee
  • Kelder Ja, 1m²
  • Tuin Nee
  • Balkon Nee
  • Dakterras Nee
Kadastrale gegevens
  • Gemeente Kerkrade
  • Sectie 1 F
  • Sectie 1 perceelnummer 3933
Overig
  • Onderhoud binnen Redelijk
  • Onderhoud buiten Redelijk
Voorziening
  • Parkeerplaats Nee
  • Lift Nee
  • Airco Nee
  • Openhaard Nee
  • Zwembad Nee
Lees meer
Klik hier om de kaart te bekijken

Afbeeldingen

Plattegrond

Documenten

Vraag bezichtiging aan

Veld niet correct
Veld niet correct
Veld niet correct
Veld niet correct

Brochure aanvragen

Veld niet correct
Veld niet correct
Veld niet correct
Veld niet correct
Veld niet correct
Veld niet correct
Veld niet correct