0 / 5 0 review 
06 123 456 78

Bunderstraat 250, MEERSSEN

€850.000,-
k.k.
6231 EP MEERSSEN
Vraag bezichtiging aan Download brochure
  • Prijs€850.000,- k.k.
  • Woonoppervlakte849 m²
  • TypeHalf-vrijstaand
  • Slaapkamers7

Omschrijving

Wonen, werken en ondernemen onder 1 dak- aan de Bunderstraat 250 t/m 256 te Meerssen

Dit unieke, royaal opgezette pand ligt zeer centraal, op slechts een steenworp afstand van de A2 richting Maastricht/Luik en Eindhoven en biedt eindeloze mogelijkheden dankzij de gemengde bestemming. Of je nu op zoek bent naar een combinatie van wonen en werken, een zorg- of kinderopvanglocatie, of een herontwikkelingsproject met potentie: hier kan het allemaal.
Het geheel bestaat uit twee samengevoegde woonhuizen en twee bedrijfsruimtes, elke met een eigen huisnummer. Dankzij de ruime opzet, flexibele indeling en uitstekende bereikbaarheid is dit een locatie met veel mogelijkheden.

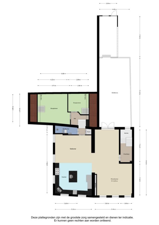
WOONHUIS NR. 250 EN 252

Souterrain:
Praktische provisiekelder, ideaal voor opslag of voorraad.

Begane grond: Hal/entree met bordestrap naar verdieping en toegang tot diverse multifunctionele bedrijfsruimtes c.q. kantoorruimtes.

Eerste verdieping:
Overloop met toegang tot riante woonkamer met openslaande deuren naar groot dakterras met een houten vloer,
een heerlijke plek om lekker te ontspannen.
Open keuken voorzien van 6-pits gaskooktoestel met bakplaat en twee ovens, wasemkap, twee koelkasten,
vriezer en vaatwasser. Hal met toegang tot twee slaapkamers en badkamer met inloopdouche, toilet en vaste wastafel.
Separate bergruimte.

Tweede verdieping:
Middels vaste trap te bereiken zolderverdieping met 5 slaapkamers, moderne badkamer voorzien van inloopdouche, dubbele vaste wastafel, designradiator en toilet. Twee bergruimtes, alwaar standplaats c.v.-installatie HR (huur).

Bedrijfsruimte nr. 254
INDELING:

Begane grond:
Showroom (ca. 155m2 VVO) met laminaatvloer, magazijn, twee toiletruimtes en wasruimte.
Diverse kantoorruimtes, magazijnen en werkplaats met separate straal- en spuitcabine.
De bedrijfsruimte heeft een eigen c.v.-installatie.

Eerste verdieping:
Zeer riante zolderverdieping met meerdere multifunctionele ruimtes en badkamer, ideaal voor opslag,
kantoor of uitbreiding van bedrijfsactiviteiten.

Bedrijfsruimte nr. 256
INDELING:
Hal met toegang tot drie multifunctionele bedrijfsruimtes, waarvan en een voorzien is van een sectionaalpoort.

BIJZONDERHEDEN:
- Zowel de woning alsmede de bedrijfsruimtes zijn voorzien van meerdere airco's
- Hardhouten en kunststof kozijnen met HR++ en triple glas
- Indeling is makkelijk aan te passen aan het gewenste gebruik doordat er veel gebruik is
gemaakt van flexibele scheidingswanden
- Parkeren op eigen terrein mogelijk
- Aanvaarding in overleg

De waarborgsom/bankgarantie is 10% van de koopsom. De koper dient deze, indien de verkoper en koper dit overeenkomen, binnen 2 weken nadat het financieringsvoorbehoud is verlopen bij de desbetreffende notaris te deponeren.
Ter bescherming van de belangen van zowel koper als ook verkoper wordt uitdrukkelijk gesteld dat een koopovereenkomst met betrekking tot deze onroerende zaak eerst dan tot stand komt nadat koper en verkoper de koopovereenkomst hebben getekend (schriftelijkheidsvereiste).

Alle door ons kantoor verstrekte informatie omtrent onroerende zaken, moet beschouwd worden als een uitnodiging om in onderhandeling te treden, en is geheel vrijblijvend! Alle vermelde maten en afmetingen zijn slechts bij benadering. Aan deze beperkte info kunnen geen rechten worden ontleend. Indien in enige documentatie of op enige website informatie staat die niet overeen komt met de werkelijkheid, dan geldt de feitelijke situatie waarin de woning zich bevindt, zoals koper deze tijdens de bezichtiging heeft kunnen waarnemen, en wordt de woning in deze feitelijke situatie/staat verkocht. Een (eventueel) bijgevoegde plattegrond dient uitsluitend als globale indicatie/visualisatie. Hieraan kunnen uitdrukkelijk geen rechten worden ontleend.

De makelaar Ralf Last nodigt u uit voor een bezichtiging.

Lees meer
Contact
Demo Makelaardij o.g.

Kerkstraat 1
1111AA Sittard

  0854012944
  monitoring@mediazo.nl

Specificaties
Afmetingen
  • Woonopp. 849m²
  • Perceelopp. 865m²
  • Inhoud 3032m³
Algemeen
  • Beschikbaarheid In overleg
  • Huisdieren gewenst Nee
Bouw
  • Soort Woningen
  • Type Half-vrijstaand
  • Bouwjaar 1933
Energie
  • CV-ketel Combi
  • CV-ketel eigendom Nee
  • CV-ketel brandstof Gas
  • CV-ketel warmwater Ja
Indeling
  • Slaapkamers 7
  • Aparte douche Nee
  • Garage Nee
  • Kelder Nee
  • Tuin Nee
  • Balkon Nee
  • Dakterras Nee
Kadastrale gegevens
  • Gemeente Meerssen
  • Sectie 1 E
  • Sectie 1 perceelnummer 613
Overig
  • Onderhoud binnen Goed
  • Onderhoud buiten Goed
Voorziening
  • Parkeerplaats Ja
  • Lift Nee
  • Airco Nee
  • Openhaard Nee
  • Zwembad Nee
Lees meer
Klik hier om de kaart te bekijken

Afbeeldingen

Plattegrond

Vraag bezichtiging aan

Veld niet correct
Veld niet correct
Veld niet correct
Veld niet correct

Brochure aanvragen

Veld niet correct
Veld niet correct
Veld niet correct
Veld niet correct
Veld niet correct
Veld niet correct
Veld niet correct