0 / 5 0 review 
06 123 456 78

Berghem 1 A 021, GULPEN

€149.500,-
k.k.
6271 NP GULPEN
Open huis
24-04 12:00 - 24-04 14:00
Vraag bezichtiging aan Download brochure
  • Prijs€149.500,- k.k.
  • Woonoppervlakte38 m²
  • TypeVrijstaand
  • Slaapkamers2

Omschrijving

Op vakantiepark EuroParcs Gulperberg krijg je dat heerlijke, ontspannen vakantiegevoel. Niet alleen de accommodaties en faciliteiten zijn van hoog niveau: het vakantiepark bevindt zich namelijk op de zuidelijke helling van de Gulperberg! Vanaf het vakantiepark heb je adembenemende vergezichten over het glooiende Limburgse landschap. EuroParcs Gulperberg is de perfecte uitvalsbasis om de mooie cols en de natuur van Limburg te verkennen. Tegelijkertijd vind je ook het bourgondische Maastricht en de grotten van Valkenburg dichtbij.

INDELING:
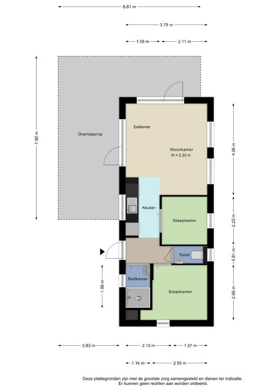
Bij binnenkomst betreed je de gezellige woonkamer van ca. 3,79 m breed en 4,26 m diep. De open keuken is efficiënt ingericht en voorzien van de benodigde apparatuur voor dagelijks comfort.

De bungalow beschikt over twee comfortabele slaapkamers, beide met een fijn formaat. De eerste slaapkamer heeft een afmeting van 2,55 m bij 2,56 m, ideaal als hoofdslaapkamer. De tweede slaapkamer meet 2,11m bij 2,23 m en biedt voldoende ruimte voor gasten of een extra familielid.

De badkamer beschikt over een douche, wastafel en toilet.

Tuin:
De woning beschikt ook over een mooie overdekte buiten veranda.

Leuk om te weten:
- Bouwjaar 2019 (conform BAG), eigen perceel: 159 m² eigen grond (conform kadaster);
- Woonoppervlakte ca. 38 m² (meetrapport aanwezig);
- Inhoud: ca. 137m³;
- Gelegen op vakantiepark EuroParcs, type Bellevue;
- Parkeren op eigen terrein;
- Permanente bewoning is niet toegestaan!

De waarborgsom/bankgarantie is 10% van de koopsom. De koper dient deze, indien de verkoper en koper dit overeenkomen, binnen 2 weken nadat het financieringsvoorbehoud is verlopen bij de desbetreffende notaris te deponeren.
Ter bescherming van de belangen van zowel koper als ook verkoper wordt uitdrukkelijk gesteld dat een koopovereenkomst met betrekking tot deze onroerende zaak eerst dan tot stand komt nadat koper en verkoper de koopovereenkomst hebben getekend (schriftelijkheidsvereiste).
Indien c.v.ketel en/of warmwatervoorziening een huurtoestel is, dient koper de huurovereenkomst over te nemen.

Alle door ons kantoor verstrekte informatie omtrent onroerende zaken, moet beschouwd worden als een uitnodiging om in onderhandeling te treden, en is geheel vrijblijvend! Alle vermelde maten en afmetingen zijn slechts bij benadering. Aan deze beperkte info kunnen geen rechten worden ontleend. Indien in enige documentatie of op enige website informatie staat die niet overeen komt met de werkelijkheid, dan geldt de feitelijke situatie waarin de woning zich bevindt, zoals koper deze tijdens de bezichtiging heeft kunnen waarnemen, en wordt de woning in deze feitelijke situatie/staat verkocht. Een (eventueel) bijgevoegde plattegrond dient uitsluitend als globale indicatie/visualisatie. Hieraan kunnen uitdrukkelijk geen rechten worden ontleend.

De makelaar Ray van der Venne nodigt u uit voor een bezichtiging.

Lees meer
Contact
Demo Makelaardij o.g.

Kerkstraat 1
1111AA Sittard

  0854012944
  monitoring@mediazo.nl

Specificaties
Afmetingen
  • Woonopp. 38m²
  • Perceelopp. 159m²
  • Inhoud 137m³
Algemeen
  • Beschikbaarheid In overleg
  • Huisdieren gewenst Nee
Bouw
  • Soort Woningen
  • Type Vrijstaand
  • Bouwjaar 2019
Energie
  • CV-ketel eigendom Nee
  • CV-ketel warmwater Nee
Indeling
  • Slaapkamers 2
  • Aparte douche Nee
  • Garage Nee
  • Kelder Nee
  • Tuin Nee
  • Balkon Nee
  • Dakterras Nee
Kadastrale gegevens
  • Gemeente Gulpen
  • Sectie 1 M
  • Sectie 1 perceelnummer 604
Overig
  • Onderhoud binnen Uitstekend
  • Onderhoud buiten Uitstekend
Voorziening
  • Parkeerplaats Ja
  • Lift Nee
  • Airco Nee
  • Openhaard Nee
  • Zwembad Nee
Lees meer
Klik hier om de kaart te bekijken

Afbeeldingen

Plattegrond

Vraag bezichtiging aan

Veld niet correct
Veld niet correct
Veld niet correct
Veld niet correct

Brochure aanvragen

Veld niet correct
Veld niet correct
Veld niet correct
Veld niet correct
Veld niet correct
Veld niet correct
Veld niet correct