0 / 5 0 review 
06 123 456 78

Leenderkapelweg 8, LANDGRAAF

 
Onder bod
€698.000,-
k.k.
6371 JG LANDGRAAF
Vraag bezichtiging aan Download brochure
  • Prijs€698.000,- k.k.
  • Woonoppervlakte185 m²
  • TypeVrijstaand
  • Slaapkamers3

Omschrijving

Welkom aan de Leenderkapelweg 8 te Landgraaf
Op een unieke locatie – eentje die slechts zelden beschikbaar komt – staat dit vrijstaand woonhuis met garage, omringd door groen en rust. Hier woont u letterlijk tussen de bomen, direct grenzend aan het geliefde Kappellerbos, bekend om zijn prachtige wandelroutes rondom het karakteristieke kapelletje en kasteelruïne Schaesberg.
De woning, gebouwd in 1960, is gelegen op een royaal perceel van 750 m² en combineert een centrale ligging met optimale privacy. Op korte afstand bevinden zich de winkelcentra van Schaesberg en Op de Kamp, diverse sportvoorzieningen, basis- als voortgezet onderwijs, evenals een bus- en treinhalte, waardoor de bereikbaarheid uitstekend is. Na een drukke dag geniet u hier van de stilte, het groen en het vrije uitzicht.
TEVENS IS DUBBELE BEWONING MOGELIJK.
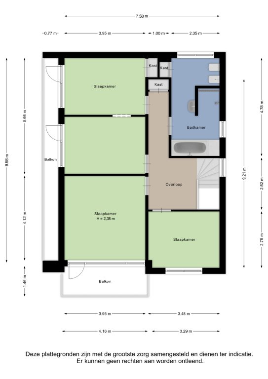
De maten van alle ruimtes vindt u terug in de plattegronden!

Leuk om te weten:
- Gedeeltelijk kunststof en houten kozijnen;
- Geheel voorzien van dubbel glas;
- 18 zonnepanelen;
- er wordt nog een nieuwe voordeur geplaatst (eind februari);
- begin maart wordt de garagepoort vervangen door een kunststof, witte sectionaalpoort;
- voorzien van split-airco.

INDELING:

Niveau -1:
Via de royale oprit bereikt u de aangebouwde garage met sectionaalpoort, tevens toegankelijk via een aparte loopdeur. Deze verdieping biedt verrassend veel extra ruimte en multifunctionele mogelijkheden.
Hier bevinden zich:
- de C.V.-ruimte met opstelling van de installatie.
- een technische ruimte.
- een praktische opslag-/garageruimte met wasmachine- en drogeraansluiting.
- een extra badkamer met douche en toilet.
- een sfeervol ingerichte lichte tuinkamer met zwarte tegelvloer en schuifpui naar de achtertuin
De tuinkamer vormt een heerlijke plek om in alle rust te genieten van het groen rondom de woning en biedt directe verbinding met de tuin.

BEGANE GROND:
U betreedt de woning via een ruime hal met prachtige Noorse leistenen vloer. Hier bevinden zich de meterkast, een toiletruimte met staand toilet en fonteintje en de trap naar de eerste verdieping (recent vernieuwd en bekleed).
De royale, lichte doorzonwoonkamer met laminaatvloer sluit naadloos aan op de eetkamer en de open keuken. Grote raampartijen zorgen voor een prachtige lichtinval en een vrij uitzicht. In de hoek van de woonkamer bevindt zich een gezellige gashaard die zorgt voor extra sfeer.
De open keuken is afgewerkt met een stijlvolle tegelvloer en voorzien van diverse inbouwapparatuur, waaronder een inductiekookplaat, oven, koelkast en vaatwasser. Via de keuken is de kelder bereikbaar.
Vanuit de woonkamer heeft u toegang tot het dakterras over de volledige breedte aan de achterzijde van de woning. Via schuifdeuren bereikt u tevens het terras en de achtertuin, waardoor binnen en buiten op natuurlijke wijze in elkaar overlopen. Het dakterras is voorzien van een prachtige glazen overkapping met elektrisch bedeinbaar zonnescherm.

EERSTE VERDIEPING:
De ruime overloop biedt toegang tot drie (voormalig vier) slaapkamers. Twee slaapkamers beschikken over toegang tot het balkon aan de zijkant van de woning, terwijl één slaapkamer toegang heeft tot het balkon aan de voorzijde. Eén van de kamers is voorzien van een vaste kast.
De geheel betegelde moderne badkamer is compleet uitgerust met een ligbad, inloopdouche, wastafel, toilet, bidet en een vaste kast.
De gehele verdieping – met uitzondering van de badkamer – is afgewerkt met een doorlopende parketvloer die zorgt voor een warme en verzorgde uitstraling.

TUIN:
De voortuin is verzorgd aangelegd met diverse groene borders en een pad naar de voordeur. Hier geniet u van een fraai uitzicht op het groen en de beelden in de omgeving.
De achtertuin heeft een verzorgd en groen karakter, met een betegeld terras, diverse beplanting en een praktische tuinkas. Dankzij de vrije ligging en de omliggende natuur ervaart u hier optimale rust en privacy.

Interesse? Wij nemen graag de tijd voor u! Neem contact op via het contactformulier op Funda of op onze website en we laten u de woning graag zien. Komt een fysieke afspraak niet zo goed uit, bel dan voor de digitale mogelijkheden!

Overige informatie
De gebruikelijke waarborgsom/bankgarantie is 10% van de koopsom. De koper dient deze, indien de verkoper en koper dit overeenkomen, binnen 2 weken nadat het financieringsvoorbehoud is verlopen bij de desbetreffende notaris te deponeren.

Toelichtingsclausule NEN2580
De Meetinstructie is gebaseerd op de NEN2580. De Meetinstructie is bedoeld om een meer eenduidige manier van meten toe te passen voor het geven van een indicatie van de gebruiksoppervlakte. De Meetinstructie sluit verschillen in meetuitkomsten niet volledig uit, door bijvoorbeeld interpretatiever- schillen, afrondingen of beperkingen bij het uitvoeren van de meting.

Schriftelijkheidsvereiste
Conform artikel 7:2 Burgerlijk Wetboek, is er pas sprake van een rechtsgeldige koopovereenkomst als de particuliere verkoper en de particuliere koper de koopovereenkomst hebben ondertekend. Een mondelinge overeenstemming tussen de particuliere verkoper en de particuliere koper is niet rechts- geldig.

Disclaimer
Alle door ons kantoor verstrekte informatie omtrent onroerende zaken, moet beschouwd worden als een uitnodiging om in onderhandeling te treden, en is geheel vrijblijvend! Alle vermelde maten en afmetingen zijn slechts bij benadering. Aan deze beperkte informatie kunnen geen rechten worden ontleend. Indien in enige documentatie of op enige website informatie staat die niet overeen komt met de werkelijkheid, dan geldt de feitelijke situatie waarin de woning zich bevindt, zoals koper deze tijdens de bezichtiging heeft kunnen waarnemen, en wordt de woning in deze feitelijke situatie/staat verkocht. Een (eventueel) bijgevoegde plattegrond dient uitsluitend als globale indicatie/visualisatie. Hieraan kunnen uitdrukkelijk geen rechten worden ontleend.

Uw makelaar Roy Ubachs nodigt u graag uit voor een bezichtiging.

Lees meer
Contact
Demo Makelaardij o.g.

Kerkstraat 1
1111AA Sittard

  0854012944
  monitoring@mediazo.nl

Specificaties
Afmetingen
  • Woonopp. 185m²
  • Perceelopp. 750m²
  • Inhoud 907m³
  • Balkon oppervlakte 1m²
Algemeen
  • Beschikbaarheid In overleg
  • Huisdieren gewenst Nee
Bouw
  • Soort Woningen
  • Type Vrijstaand
  • Bouwjaar 1960
Energie
  • Energielabel D
  • CV-ketel Combi
  • CV-ketel eigendom Nee
  • CV-ketel brandstof Gas
  • CV-ketel warmwater Ja
  • Aanwezige isolatie Dakisolatie
Indeling
  • Slaapkamers 3
  • Aparte douche Nee
  • Garage Ja
  • Kelder Nee
  • Tuin Ja
  • Tuin ligging Noord
  • Balkon Ja
  • Dakterras Nee
Kadastrale gegevens
  • Gemeente Schaesberg
  • Sectie 1 A
  • Sectie 1 perceelnummer 2445
Overig
  • Onderhoud binnen Goed tot uitstekend
  • Onderhoud buiten Goed
Voorziening
  • Parkeerplaats Ja
  • Lift Nee
  • Airco Ja
  • Openhaard Nee
  • Zwembad Nee
  • Zonnepanelen Ja
Lees meer
Klik hier om de kaart te bekijken

Afbeeldingen

IMZ_VIDEOS

Plattegrond

Documenten

Vraag bezichtiging aan

Veld niet correct
Veld niet correct
Veld niet correct
Veld niet correct

Brochure aanvragen

Veld niet correct
Veld niet correct
Veld niet correct
Veld niet correct
Veld niet correct
Veld niet correct
Veld niet correct