0 / 5 0 review 
06 123 456 78

Vaesrade 95, NUTH

 
Onder bod
€425.000,-
k.k.
6361 HH NUTH
Vraag bezichtiging aan Download brochure
  • Prijs€425.000,- k.k.
  • Woonoppervlakte115 m²
  • TypeVrijstaand
  • Slaapkamers3

Omschrijving

Vaesrade 95 te Nuth – Vrijstaand wonen in alle rust, met ruimte om te leven
Zoek je een vrijstaande woning waar comfort, sfeer en rust samenkomen? Dan is Vaesrade 95 precies wat je zoekt. Deze instapklare woning is rustig gelegen, verrassend ruim en biedt alles wat je nodig hebt om jarenlang fijn te wonen. Van een sfeervolle woon-/eetkamer met gashaard tot een groene, omsloten tuin met overkapping: dit is een huis dat je meteen omarmt.
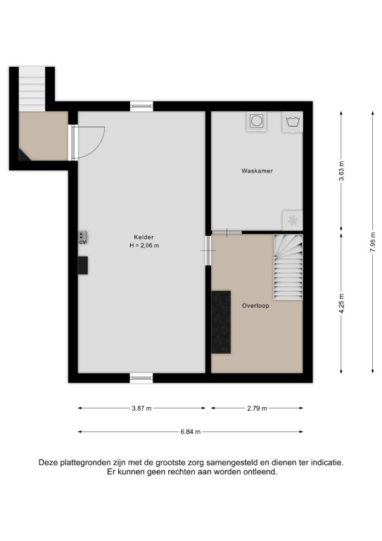
De maten van alle ruimtes vind u terug in de plattegronden!

Leuk om te weten:
• Vrijstaand woonhuis in een rustige woonomgeving;
• Houten kozijnen met dubbel glas;
• c.v.-ketel in eigendom (2009);
• Energielabel D;
• Royale garage met vliering;
• Aanvaarding 1 oktober 2026.

Souterrain:
Een absolute meerwaarde van deze woning is het ruime souterrain, verdeeld in drie functionele ruimtes. Hier vind je onder andere de wasruimte met aansluitingen voor wasmachine en droger. De grootste ruimte beschikt over de c.v.-opstelling en heeft via een trap directe toegang tot de achtertuin. Perfect als berging, hobbyruimte of extra opslag.

Begane grond:
Je komt binnen in een royale, lichte entree die direct een prettige indruk geeft. Vanuit hier bereik je het souterrain, de eerste verdieping, de meterkast en het modern betegelde toilet met hangcloset en fonteintje.
De openslaande deuren leiden naar de ruime woon-/eetkamer: een heerlijke leefruimte met veel lichtinval en een sfeervolle gashaard als warm middelpunt. Via de schuifpui loop je zo de achtertuin in, waardoor binnen en buiten naadloos in elkaar overlopen.
In de aanbouw is de keuken gesitueerd, de keuken in hoekopstelling is praktisch ingericht en voorzien van diverse inbouwapparatuur, waaronder een vaatwasser, koelkast, afzuigkap, combi-oven en keramische kookplaat. Vanuit de keuken is er directe toegang tot de tuin en de overkapping – ideaal voor zomerse dagen.
De gehele benedenverdieping is voorzien van een doorlopende plavuizenvloer en vloerverwarming.
De royale garage, direct naast de woning, beschikt over een eigen vliering en een deur naar de achtertuin. Ideaal voor auto, fietsen, klusruimte of extra opslag.

Eerste verdieping:
Op de eerste verdieping bevinden zich drie slaapkamers, waarvan twee met een laminaatvloer en één met vloerbedekking. Eén slaapkamer is voorzien van een vaste kastenwand.
De luxe badkamer (2005) is een echte eyecatcher en compleet uitgerust met een hoekbad met whirlpoolfunctie, een douchecabine, wastafel met meubel en toilet. Comfort en ontspanning staan hier centraal.

Zolderverdieping:
Via een vlizotrap bereik je de zolderverdieping, verdeeld in twee ruimtes. Ideaal als extra bergruimte.

Tuin:
De omsloten tuin is groen, verzorgd en biedt volop privacy. Het beklinkerde terras en de overkapping maken dit een heerlijke plek om het hele jaar door buiten te genieten, of je nu wilt ontspannen of gezellig gasten ontvangt.
Tevens heeft de tuin een vrijstaand tuinhuis en een zij-ingang.

Kortom: een vrijstaande, instapklare woning met verrassend veel ruimte, een fijne tuin en een rustige ligging.

Interesse? Wij nemen graag de tijd voor u! Neem contact op via het contactformulier op Funda of op onze website en we laten u de woning graag zien. Komt een fysieke afspraak niet zo goed uit, bel dan voor de digitale mogelijkheden!

Overige informatie
De gebruikelijke waarborgsom/bankgarantie is 10% van de koopsom. De koper dient deze, indien de verkoper en koper dit overeenkomen, binnen 2 weken nadat het financieringsvoorbehoud is verlopen bij de desbetreffende notaris te deponeren.

Toelichtingsclausule NEN2580
De Meetinstructie is gebaseerd op de NEN2580. De Meetinstructie is bedoeld om een meer eenduidige manier van meten toe te passen voor het geven van een indicatie van de gebruiksoppervlakte. De Meetinstructie sluit verschillen in meetuitkomsten niet volledig uit, door bijvoorbeeld interpretatiever- schillen, afrondingen of beperkingen bij het uitvoeren van de meting.

Schriftelijkheidsvereiste
Conform artikel 7:2 Burgerlijk Wetboek, is er pas sprake van een rechtsgeldige koopovereenkomst als de particuliere verkoper en de particuliere koper de koopovereenkomst hebben ondertekend. Een mondelinge overeenstemming tussen de particuliere verkoper en de particuliere koper is niet rechts- geldig.

Disclaimer
Alle door ons kantoor verstrekte informatie omtrent onroerende zaken, moet beschouwd worden als een uitnodiging om in onderhandeling te treden, en is geheel vrijblijvend! Alle vermelde maten en afmetingen zijn slechts bij benadering. Aan deze beperkte informatie kunnen geen rechten worden ontleend. Indien in enige documentatie of op enige website informatie staat die niet overeen komt met de werkelijkheid, dan geldt de feitelijke situatie waarin de woning zich bevindt, zoals koper deze tijdens de bezichtiging heeft kunnen waarnemen, en wordt de woning in deze feitelijke situatie/staat verkocht. Een (eventueel) bijgevoegde plattegrond dient uitsluitend als globale indicatie/visualisatie. Hieraan kunnen uitdrukkelijk geen rechten worden ontleend.

Uw makelaar Roy Ubachs nodigt u graag uit voor een bezichtiging.

Lees meer
Contact
Demo Makelaardij o.g.

Kerkstraat 1
1111AA Sittard

  0854012944
  monitoring@mediazo.nl

Specificaties
Afmetingen
  • Woonopp. 115m²
  • Perceelopp. 520m²
  • Inhoud 725m³
Algemeen
  • Beschikbaarheid Vanaf 01-10-2026
  • Huisdieren gewenst Nee
Bouw
  • Soort Woningen
  • Type Vrijstaand
  • Bouwjaar 1978
Energie
  • Energielabel D
  • CV-ketel hr
  • CV-ketel eigendom Ja
  • CV-ketel bouwjaar 2009
  • CV-ketel warmwater Ja
  • Aanwezige isolatie Dakisolatie, glasisolatie
Indeling
  • Slaapkamers 3
  • Aparte douche Nee
  • Garage Ja
  • Kelder Ja, 1m²
  • Tuin Ja
  • Tuin ligging Noordoost
  • Balkon Nee
  • Dakterras Nee
Kadastrale gegevens
  • Gemeente Nuth
  • Sectie 1 B
  • Sectie 1 perceelnummer 1890
Overig
  • Onderhoud binnen Goed
  • Onderhoud buiten Goed
Voorziening
  • Parkeerplaats Ja
  • Lift Nee
  • Airco Nee
  • Openhaard Nee
  • Zwembad Nee
Lees meer
Klik hier om de kaart te bekijken

Afbeeldingen

IMZ_VIDEOS

Plattegrond

Vraag bezichtiging aan

Veld niet correct
Veld niet correct
Veld niet correct
Veld niet correct

Brochure aanvragen

Veld niet correct
Veld niet correct
Veld niet correct
Veld niet correct
Veld niet correct
Veld niet correct
Veld niet correct