0 / 5 0 review 
06 123 456 78

Hommelweg 2 R 738, SUSTEREN

€350.000,-
k.k.
6114 RT SUSTEREN
Vraag bezichtiging aan Download brochure
  • Prijs€350.000,- k.k.
  • Woonoppervlakte123 m²
  • TypeVrijstaand
  • Slaapkamers6

Omschrijving

Op het vakantiepark van "EuroParcs Limburg" gelegen bieden wij u deze prachtige 12-persoons villa aan met maar liefst 6 slaapkamers en 2 badkamers. Gelegen op een perceel van 355 m² en een woonoppervlakte van 123 m².

Voor alle overige vragen over contracten, parkkosten en andere details, verwijzen wij je graag naar de website: www.europarcsverkoop.nl

INDELING
Begane grond:
Bij binnenkomst in de hal/entree bevindt zich aan de rechterzijde de technische ruimte, toilet, badkamer en de slaapkamer. De badkamer op de begane grond is voorzien van een douche en een wastafel. De ruime living met open keuken is voorzien van een volledige uitgeruste keukeninstallatie. U kunt de tuin bereiken middels deuren bij de woonkamer.

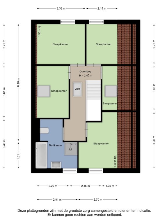
Eerste verdieping
Via vaste trap naar de eerste verdieping komt u uit op de overloop die toegang geeft tot 5 slaapkamers en de badkamer die voorzien is van een douche, wastafel, ligbad en een toilet.
Slaapkamer 2: ca. 9m²
Slaapkamer 3: ca. 6m²
Slaapkamer 4: ca. 8m²
Slaapkamer 5: ca. 3m²
Slaapkamer 6: ca. 11m²

Tuin:
De tuin heeft een gemeubileerd terras. Je kunt 2 auto's parkeren bij de villa.

Leuk om te weten:
- Bouwjaar 2011 (conform BAG), eigen perceel: 335 m² eigen grond (conform kadaster);
- Woonoppervlakte ca. 123 m² (meetrapport aanwezig);
- Inhoud: ca. 485 m³;
- Gelegen op vakantiepark EuroParcs Resort Limburg;
- Parkeren op eigen terrein;
- Permanente bewoning is niet toegestaan!

HISTORIE:
EuroParcs Resort Limburg is een vakantiepark in Susteren, van oudsher bekend als Recreatiepark Landgoed Hommelheide, in de Nederlandse gemeente Echt-Susteren.

Het bij een zandontginningsplas gelegen recreatiepark heeft uitsluitend recreatiewoningen. Tot 2006 was Recreatie Centra Nederland (RCN) eigenaar van het bedrijf. Sinds de overname door EuroParcs is het park gemoderniseerd, waarbij het aantal bungalows werd uitgebreid ten koste van de kampeerplaatsen.

De aanwezige zwemplas is in 1930 ontstaan. In 1956 is van het zandgat een recreatieve voorziening gemaakt. Vanwege de voorgeschiedenis wordt de plas ook wel aangeduid als de Bagger. De plas is een van de door waterschap Roer en Overmaas op de kwaliteit van het oppervlaktewater gecontroleerde zwemgelegenheden.

EuroParcs Resort Limburg is voorzien van alle faciliteiten waaronder een binnenzwembad, strandbad, dierenweide, indoor-speelparadijs, horeca-faciliteiten o.a. Friends 'n Bites, supermarkt enz. enz. Voor uitstapjes naar bijvoorbeeld Maasmechelen Village of het gezellige Aachen zit u kort bij zowel de Duitse als Belgische grens.


De waarborgsom/bankgarantie is 10% van de koopsom. De koper dient deze, indien de verkoper en koper dit overeenkomen, binnen 2 weken nadat het financieringsvoorbehoud is verlopen bij de desbetreffende notaris te deponeren.
Ter bescherming van de belangen van zowel koper als ook verkoper wordt uitdrukkelijk gesteld dat een koopovereenkomst met betrekking tot deze onroerende zaak eerst dan tot stand komt nadat koper en verkoper de koopovereenkomst hebben getekend (schriftelijkheidsvereiste).
Indien c.v.ketel en/of warmwatervoorziening een huurtoestel is, dient koper de huurovereenkomst over te nemen.

Alle door ons kantoor verstrekte informatie omtrent onroerende zaken, moet beschouwd worden als een uitnodiging om in onderhandeling te treden, en is geheel vrijblijvend! Alle vermelde maten en afmetingen zijn slechts bij benadering. Aan deze beperkte info kunnen geen rechten worden ontleend. Indien in enige documentatie of op enige website informatie staat die niet overeen komt met de werkelijkheid, dan geldt de feitelijke situatie waarin de woning zich bevindt, zoals koper deze tijdens de bezichtiging heeft kunnen waarnemen, en wordt de woning in deze feitelijke situatie/staat verkocht. Een (eventueel) bijgevoegde plattegrond dient uitsluitend als globale indicatie/visualisatie. Hieraan kunnen uitdrukkelijk geen rechten worden ontleend.

De makelaar Ray van der Venne nodigt u uit voor een bezichtiging.

Lees meer
Contact
Demo Makelaardij o.g.

Kerkstraat 1
1111AA Sittard

  0854012944
  monitoring@mediazo.nl

Specificaties
Afmetingen
  • Woonopp. 123m²
  • Perceelopp. 355m²
  • Inhoud 485m³
Algemeen
  • Beschikbaarheid In overleg
  • Huisdieren gewenst Nee
Bouw
  • Soort Woningen
  • Type Vrijstaand
  • Bouwjaar 2011
Energie
  • Energielabel A
  • CV-ketel eigendom Nee
  • CV-ketel warmwater Nee
Indeling
  • Slaapkamers 6
  • Aparte douche Nee
  • Garage Nee
  • Kelder Nee
  • Tuin Nee
  • Balkon Nee
  • Dakterras Nee
Kadastrale gegevens
  • Gemeente Susteren
  • Sectie 1 H
  • Sectie 1 perceelnummer 2009
Overig
  • Onderhoud binnen Uitstekend
  • Onderhoud buiten Uitstekend
Voorziening
  • Parkeerplaats Nee
  • Lift Nee
  • Airco Nee
  • Openhaard Nee
  • Zwembad Nee
Lees meer
Klik hier om de kaart te bekijken

Afbeeldingen

Plattegrond

Vraag bezichtiging aan

Veld niet correct
Veld niet correct
Veld niet correct
Veld niet correct

Brochure aanvragen

Veld niet correct
Veld niet correct
Veld niet correct
Veld niet correct
Veld niet correct
Veld niet correct
Veld niet correct