0 / 5 0 review 
06 123 456 78

Hommelweg 2 R 326, SUSTEREN

€89.500,-
k.k.
6114 RT SUSTEREN
Vraag bezichtiging aan Download brochure
  • Prijs€89.500,- k.k.
  • Woonoppervlakte47 m²
  • TypeVrijstaand
  • Slaapkamers2

Omschrijving

Vrijstaand recreatiechalet op eigen grond met volop privacy, twee comfortabele slaapkamers en een houten tuinhuis. Hier geniet u van rust, ruimte en comfort, terwijl het zwembad, de winkel, de receptie en de parkuitgang zich op korte loopafstand bevinden. Een heerlijke plek om te ontspannen, met alle voorzieningen binnen handbereik.

Kortom: een instapklare recreatiewoning op eigen grond, gelegen op een gewilde locatie binnen het park – ideaal voor eigen gebruik én aantrekkelijk als investering.

Leuk om te weten:
- Bouwjaar 2007 (conform BAG); gelegen op 150 m² eigen grond (conform kadaster);
- Woonoppervlakte ca. 47 m² (meetrapport aanwezig);
- Inhoud ca. 163 m³;
- Gelegen op het populaire vakantiepark EuroParcs Resort Limburg;
- Volledig voorzien van kunststof kozijnen met dubbele beglazing;
- Voorzien van airconditioning voor extra comfort in zomer en winter;
- Servicebijdrage park: circa € 2.290,-- per jaar;
- Parkeren op eigen terrein;
- 365 dagen per jaar recreëren is toegestaan!

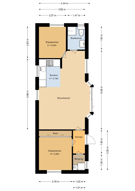
INDELING

Begane grond:
U betreedt de woning via de entree, waar zich tevens een praktische bergruimte bevindt met de aansluiting voor wasmachine en droger en de opstelling van de cv-installatie.

De lichte woonkamer vormt het hart van de woning. Dankzij de grote raampartijen en de open indeling voelt de ruimte aangenaam en ruim aan. Hier creëert u moeiteloos een gezellige zithoek én een fijne eethoek.
De open L-vormige keuken sluit naadloos aan op de woonkamer en is functioneel ingericht met een gaskookplaat, combimagnetron, koelkast en spoelbak. Alles binnen handbereik voor een zorgeloos verblijf.

Vanuit de woonkamer bereikt u de twee slaapkamers en de badkamer:
- Slaapkamer 1: ca. 2,76 x 3,30 m, voorzien van een vaste kledingkast over de gehele wand
- Slaapkamer 2: ca. 2,27 x 2,63 m, perfect als logeer-, kinder- of hobbykamer.
De volledig betegelde badkamer is compleet uitgevoerd met een wastafel, toilet en douche en biedt alles wat u nodig heeft voor comfortabel dagelijks gebruik.

De gehele woning (met uitzondering van de badkamer) is voorzien van een fraaie houten vloer (laminaat/PVC), wat zorgt voor een warme, eigentijdse uitstraling.

Tuin:
De omsloten tuin biedt veel privacy en vormt een heerlijke buitenruimte om te ontspannen. Het terras is dé plek voor lange zomeravonden of een ontspannen kop koffie in de ochtendzon.
De vrijstaande houten berging/het tuinhuis biedt praktische opbergruimte voor fietsen, tuinmeubilair of gereedschap.

HISTORIE:
EuroParcs Resort Limburg is een vakantiepark in Susteren, van oudsher bekend als Recreatiepark Landgoed Hommelheide, in de Nederlandse gemeente Echt-Susteren.

Het bij een zandontginningsplas gelegen recreatiepark heeft uitsluitend recreatiewoningen. Tot 2006 was Recreatie Centra Nederland (RCN) eigenaar van het bedrijf. Sinds de overname door EuroParcs is het park gemoderniseerd, waarbij het aantal bungalows werd uitgebreid ten koste van de kampeerplaatsen.

De aanwezige zwemplas is in 1930 ontstaan. In 1956 is van het zandgat een recreatieve voorziening gemaakt. Vanwege de voorgeschiedenis wordt de plas ook wel aangeduid als de Bagger. De plas is een van de door waterschap Roer en Overmaas op de kwaliteit van het oppervlaktewater gecontroleerde zwemgelegenheden.

EuroParcs Resort Limburg is voorzien van alle faciliteiten waaronder een binnenzwembad, strandbad, dierenweide, indoor-speelparadijs, horeca-faciliteiten o.a. Friends 'n Bites, supermarkt enz. enz. Voor uitstapjes naar bijvoorbeeld Maasmechelen Village of het gezellige Aachen zit u kort bij zowel de Duitse als Belgische grens.

Interesse? Wij nemen graag de tijd voor u! Neem contact op via het contactformulier op de diverse websites of op onze website en we laten u de woning graag zien.

Overige informatie:
De gebruikelijke waarborgsom/bankgarantie is 10% van de koopsom. De koper dient deze, indien de verkoper en koper dit overeenkomen, binnen 2 weken nadat het financieringsvoorbehoud is verlopen bij de desbetreffende notaris te deponeren.
Indien c.v.-ketel en/of warmwatervoorziening een huurtoestel is, dient koper de huurovereenkomst over te nemen.

Toelichtingsclausule NEN2580
De Meetinstructie is gebaseerd op de NEN2580. De Meetinstructie is bedoeld om een meer eenduidige manier van meten toe te passen voor het geven van een indicatie van de gebruiksoppervlakte. De Meetinstructie sluit verschillen in meetuitkomsten niet volledig uit, door bijvoorbeeld interpretatiever- schillen, afrondingen of beperkingen bij het uitvoeren van de meting.

Schriftelijkheidsvereiste
Conform artikel 7:2 Burgerlijk Wetboek, is er pas sprake van een rechtsgeldige koopovereenkomst als de particuliere verkoper en de particuliere koper de koopovereenkomst hebben ondertekend. Een mondelinge overeenstemming tussen de particuliere verkoper en de particuliere koper is niet rechts- geldig.

Disclaimer
Alle door ons kantoor verstrekte informatie omtrent onroerende zaken, moet beschouwd worden als een uitnodiging om in onderhandeling te treden, en is geheel vrijblijvend! Alle vermelde maten en afmetingen zijn slechts bij benadering. Aan deze beperkte informatie kunnen geen rechten worden ontleend. Indien in enige documentatie of op enige website informatie staat die niet overeen komt met de werkelijkheid, dan geldt de feitelijke situatie waarin de woning zich bevindt, zoals koper deze tijdens de bezichtiging heeft kunnen waarnemen, en wordt de woning in deze feitelijke situatie/staat verkocht. Een (eventueel) bijgevoegde plattegrond dient uitsluitend als globale indicatie/visualisatie. Hieraan kunnen uitdrukkelijk geen rechten worden ontleend.

De makelaar Ray van der Venne nodigt u graag uit voor een bezichtiging.

Lees meer
Contact
Demo Makelaardij o.g.

Kerkstraat 1
1111AA Sittard

  0854012944
  monitoring@mediazo.nl

Specificaties
Afmetingen
  • Woonopp. 47m²
  • Perceelopp. 150m²
  • Inhoud 163m³
Algemeen
  • Beschikbaarheid In overleg
  • Huisdieren gewenst Nee
Bouw
  • Soort Woningen
  • Type Vrijstaand
  • Bouwjaar 2007
Energie
  • CV-ketel hr
  • CV-ketel eigendom Ja
  • CV-ketel warmwater Ja
Indeling
  • Slaapkamers 2
  • Aparte douche Nee
  • Garage Nee
  • Kelder Nee
  • Tuin Nee
  • Balkon Nee
  • Dakterras Nee
Kadastrale gegevens
  • Gemeente Susteren
  • Sectie 1 H
  • Sectie 1 perceelnummer 1792
Overig
  • Onderhoud binnen Goed
  • Onderhoud buiten Goed
Voorziening
  • Parkeerplaats Ja
  • Lift Nee
  • Airco Ja
  • Openhaard Nee
  • Zwembad Nee
Lees meer
Klik hier om de kaart te bekijken

Afbeeldingen

Plattegrond

Vraag bezichtiging aan

Veld niet correct
Veld niet correct
Veld niet correct
Veld niet correct

Brochure aanvragen

Veld niet correct
Veld niet correct
Veld niet correct
Veld niet correct
Veld niet correct
Veld niet correct
Veld niet correct